RESERVIERT: Licht, Holz und Wohlgefühl – ökologisch gebautes Zuhause in Wittlingen
Wohnen mit Stil und Natürlichkeit – Ökologisches Einfamilienhaus in ruhiger Lage von Wittlingen
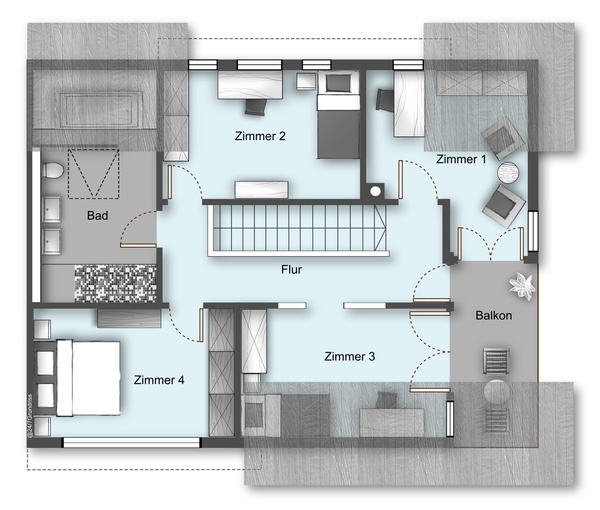
Dieses ansprechende Einfamilienhaus vereint modernes Design mit dem Charme natürlicher Materialien. Harmonisch abgestimmte Holz- und Glaselemente schaffen eine warme, freundliche Atmosphäre und verleihen dem Haus einen einzigartigen Charakter. Große Fensterflächen sorgen für viel Tageslicht und unterstreichen den offenen, hellen Wohnstil.
LINK zu Video: https://youtu.be/c7E8FrYDkvI
Wohnbereich und Ausstattung
Die helle, moderne Einbauküche fügt sich perfekt in das offene Wohnkonzept ein und bietet viel Platz für gemeinsames Kochen und Genießen. Der angrenzende Wohnbereich überzeugt mit einem gemütlichen Holzofen, der an kühleren Tagen für wohlige Wärme und Behaglichkeit sorgt.
Im Obergeschoss beeindruckt der offene Dachgiebel ohne Zwischendecke – ein architektonisches Highlight, das Raumhöhe, Großzügigkeit und ein besonderes Gefühl von Freiheit vermittelt.
Das neu gestaltete Badezimmer überzeugt mit moderner Ausstattung, hochwertigen Materialien und einer klaren Linienführung.
Lage und Wohnumfeld
Das Haus befindet sich in einer ruhigen Sackgasse eines reinen Wohngebiets in Wittlingen, einer beliebten Gemeinde im Landkreis Lörrach. Die Lage ist geprägt von Ruhe, gepflegten Nachbarschaften und einem naturnahen Wohnklima – ideal für Familien und Menschen, die Wert auf Natürlichkeit, Qualität und nachhaltiges Wohnen legen.
Einkaufsmöglichkeiten, Schulen, Kindergärten sowie die Verkehrsanbindungen nach Lörrach, Basel und Weil am Rhein sind in wenigen Minuten erreichbar.
Garagen- und Stellplatzsituation
Die Garage liegt direkt neben dem Hauseingang und bietet einen komfortablen Zugang über das Garagentor. Zusätzlich stehen zwei bis drei Außenstellplätze zur Verfügung, sodass stets ausreichend Parkmöglichkeiten vorhanden sind – ideal für Familien, Besucher oder Berufspendler, die Wert auf Komfort und Alltagstauglichkeit legen.
Sternhaus GmbH – Ökologisches Bauen in Eimeldingen
Die Sternhaus GmbH aus Eimeldingen ist bekannt für ihre hochwertigen Bauprojekte mit Fokus auf ökologisches und nachhaltiges Bauen.
Das Unternehmen setzt bevorzugt auf Holz als zentralen Baustoff und legt besonderen Wert auf Qualität, Energieeffizienz und ein gesundes Raumklima.
Durch den Einsatz natürlicher Materialien und ressourcenschonender Bauweisen entstehen Gebäude, die modernes Design mit ökologischen Werten vereinen – ideal für alle, die bewusst und zukunftsorientiert wohnen möchten.
Hinweis:
Die Angaben können sich noch ändern, da sich das Objekt derzeit in Vorbereitung befindet.
Dieses ansprechende Einfamilienhaus vereint modernes Design mit dem Charme natürlicher Materialien. Harmonisch abgestimmte Holz- und Glaselemente schaffen eine warme, freundliche Atmosphäre und verleihen dem Haus einen einzigartigen Charakter. Große Fensterflächen sorgen für viel Tageslicht und unterstreichen den offenen, hellen Wohnstil.
LINK zu Video: https://youtu.be/c7E8FrYDkvI
Wohnbereich und Ausstattung
Die helle, moderne Einbauküche fügt sich perfekt in das offene Wohnkonzept ein und bietet viel Platz für gemeinsames Kochen und Genießen. Der angrenzende Wohnbereich überzeugt mit einem gemütlichen Holzofen, der an kühleren Tagen für wohlige Wärme und Behaglichkeit sorgt.
Im Obergeschoss beeindruckt der offene Dachgiebel ohne Zwischendecke – ein architektonisches Highlight, das Raumhöhe, Großzügigkeit und ein besonderes Gefühl von Freiheit vermittelt.
Das neu gestaltete Badezimmer überzeugt mit moderner Ausstattung, hochwertigen Materialien und einer klaren Linienführung.
Lage und Wohnumfeld
Das Haus befindet sich in einer ruhigen Sackgasse eines reinen Wohngebiets in Wittlingen, einer beliebten Gemeinde im Landkreis Lörrach. Die Lage ist geprägt von Ruhe, gepflegten Nachbarschaften und einem naturnahen Wohnklima – ideal für Familien und Menschen, die Wert auf Natürlichkeit, Qualität und nachhaltiges Wohnen legen.
Einkaufsmöglichkeiten, Schulen, Kindergärten sowie die Verkehrsanbindungen nach Lörrach, Basel und Weil am Rhein sind in wenigen Minuten erreichbar.
Garagen- und Stellplatzsituation
Die Garage liegt direkt neben dem Hauseingang und bietet einen komfortablen Zugang über das Garagentor. Zusätzlich stehen zwei bis drei Außenstellplätze zur Verfügung, sodass stets ausreichend Parkmöglichkeiten vorhanden sind – ideal für Familien, Besucher oder Berufspendler, die Wert auf Komfort und Alltagstauglichkeit legen.
Sternhaus GmbH – Ökologisches Bauen in Eimeldingen
Die Sternhaus GmbH aus Eimeldingen ist bekannt für ihre hochwertigen Bauprojekte mit Fokus auf ökologisches und nachhaltiges Bauen.
Das Unternehmen setzt bevorzugt auf Holz als zentralen Baustoff und legt besonderen Wert auf Qualität, Energieeffizienz und ein gesundes Raumklima.
Durch den Einsatz natürlicher Materialien und ressourcenschonender Bauweisen entstehen Gebäude, die modernes Design mit ökologischen Werten vereinen – ideal für alle, die bewusst und zukunftsorientiert wohnen möchten.
Hinweis:
Die Angaben können sich noch ändern, da sich das Objekt derzeit in Vorbereitung befindet.
| Kaufpreis | 729.000,00 EUR |
| Provision | 3,57 % Käuferprovision inkl. MwSt., verdient und fällig mit Beurkundung des notariellen Kaufvertrages. Der Immobilienmakler hat einen provisionspflichtigen Maklervertrag mit dem Verkäufer in gleicher Höhe abgeschlossen. |
Informationen
Downloads
Objekt Informationen
| Nr. | 25WH |
|---|---|
| Typ | Haus |
| Baujahr | 2001 |
| Wohnfläche | 161 qm |
| Grundstücksfläche | 437 qm |
| Anzahl Zimmer | 6 |
| Anzahl Badezimmer | 2 |
| Anzahl Schlafzimmer | 3 |
| Anzahl Etagen | 3 |
| Anzahl Stellplätze | 5 |
| Separates WC | ja |
| Gartennutzung | ja |
| Terrasse | ja |
| Befeuerung | Solarheizung, Gas, Holz / Stückholz |
| Energieeffizienz | Verbrauchsausweis 66,8 kWh/(m²·a) = B |
